
本案件名為貝利住宅,位於俄勒岡州中部的牧場中。它原是一間建於1970年代的原始鄉村別墅,近期由Hacker為其進行翻新改造。
Hacker團隊延續了它原本充滿活力的懷舊色彩及豐富紋理,展現出對原設計理念的熱愛與致敬。從浴室瓷磚到皂石壁爐,每一個細節都力求將原始內飾復古精神、自然環境及現代色彩相融合,使貝利住宅美麗的木結構得以顯現。
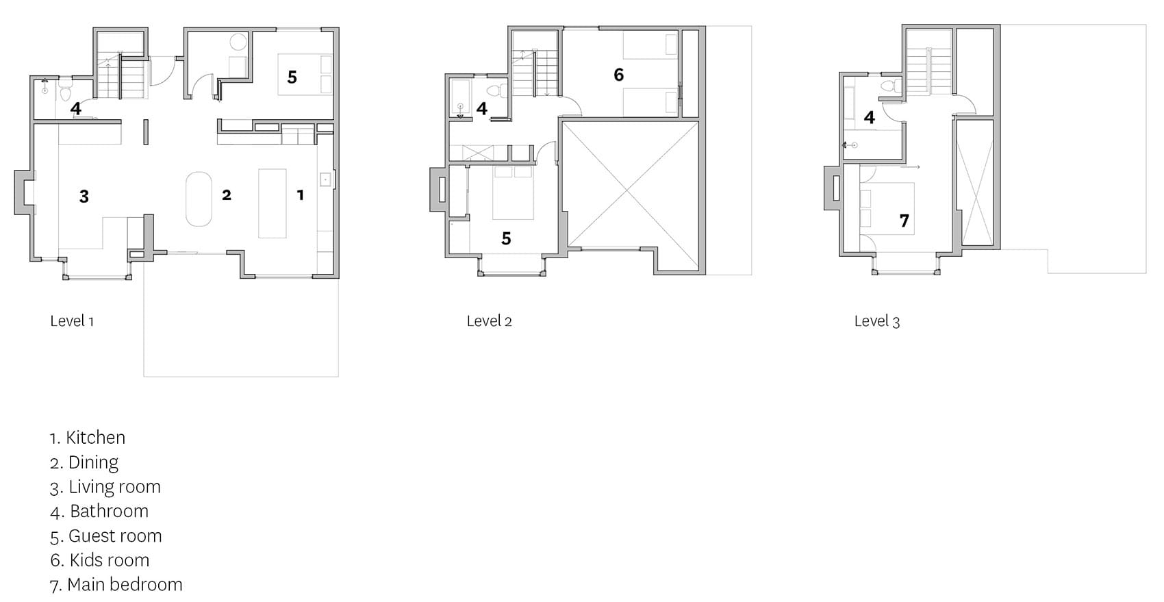
由於屋主格外注重房屋的靈活性與簡單性。設計師的改造中,簡化了原有佈局,創造出開放式且易於辨識的平面。設計團隊拆除了多面牆壁,以打通空間隔閡,讓自然光和景觀進入每個房間內,為整個別墅帶來明亮採光。
本案件的飄窗,是它最迷人之處。在設計初期,團隊發現原本起居室內的一扇大窗戶沒有得到有效利用,於是決定在新方案中將這一元素進行整合,最終構成一個悠閒的閱讀空間。設計師為空間添加的內置書架與櫥櫃,為每個房間中最大的特色,它盡可能減少了添購傢俱的需求,同時節約占地面積,提高空間利用率。














資料來源:Hacker
【延伸閱讀】






