
空間類型:住家
房屋狀況:29年老屋翻新
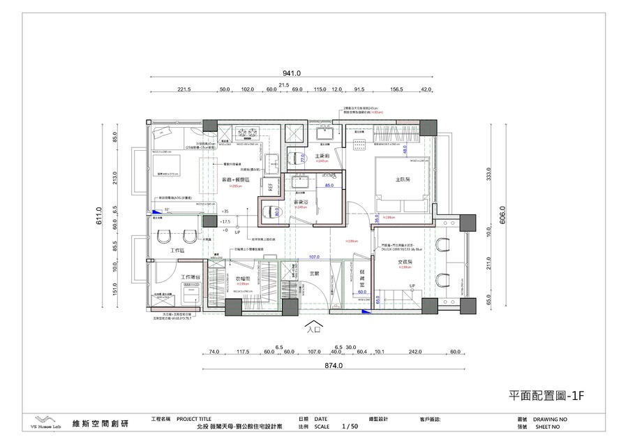
空間坪數:20坪
室內格局:3房1廳2衛
設計風格:現代風
裝潢費用:270萬(含冷氣)
使用建材:超耐磨地板、玻璃、鐵件、進口瓷磚、特殊漆
家庭成員:2大人、2小孩

這是一個位於山區的現代住宅,室內設計專注於重新詮釋一個已有29年歷史的老屋,以滿足2大人和2小孩的家庭需求。這20坪的空間包括3間臥室、1個客廳和2個衛浴,以及270萬元的裝潢預算(包括冷氣系統)。在設計中,運用了超耐磨地板、玻璃、鐵件、進口瓷磚和特殊漆等高品質建材,塑造出獨特的室內環境。
設計理念源自初次勘察時的驚喜——壯觀的山景。雖然原有格局將山景局限在狹長的廊道之外,但設計團隊堅決希望將這片美景引入室內。
原本的格局具有一個極具優勢的特點——3米4的挑高度。這成為了重新配置空間的基礎。

業主期望將這個20坪的空間重新詮釋。設計師們運用挑高的優勢重新分配了空間,以滿足一家四口的生活需求。他們設計了不同高度的垂直空間,賦予了不同的生活功能,最終呈現了12個空間和13種功能的多元化配置。
玄關是一個令人驚豔的起點,陽光照亮了白色牆上的藝術畫作,這裡是一個小藝術展示牆,不定期展示著小朋友最純真的創作。由於地坪空間有限,設計團隊決定不壓縮獨立的臥室空間,而是在公共區域增加了一個全家人共用的更衣室,同時將臥室的儲物空間最小化。這個更衣室被設計得非常實用,每個家庭成員都能夠輕鬆使用,同時在上方空間設置了一個休憩平台,既是小朋友的遊戲區,也是大人們的放鬆區域。




客餐廳位於可以遠眺山頭和山嵐的區域。地坪被提高,視線更加接近天空,地坪下方有大量的儲物空間,還設計了自動升降餐桌,提供更多多功能性。





小孩房需滿足2位年齡相仿的女孩的日常需求。設計師們增加了一個夾層空間,上層是臥眠區,下層是遊憩和閱讀區域,樓梯也被充分利用為收納空間。
這個家提供了一個面對山景的環境,讓居住者可以享受風的吹拂,欣賞光影的變幻。正如人們所說的:“小隱於野大隱於市”,這個家正是大隱隱於山的理想之地。

資料提供:維斯空間創研





