
座落地點:台北市 內湖區
空間類型:辦公空間
房屋狀況:中古屋 / 7年
空間坪數:120坪
室內格局:開放式空間
設計風格:現代風、古典風、工業風
裝潢費用:350萬(不含:家具、家電、冷氣)
使用建材:染色橡木皮、大理石、香檳金鍍鈦、玻璃拉門、乳膠漆、木紋地坪、線板造型

設計理念:本案由原辦公室格局全面拆除,重新梳理動線與分區,將開放結構轉化為靈活居住空間。以石材、木質與金屬為核心材質,建立清晰骨架與優雅氛圍;藉由光線、比例與細節的精準拿捏,打造兼具現代俐落感與古典細膩度的居所,讓空間能隨業主生活彈性變化,同時保有穩定的設計精神。




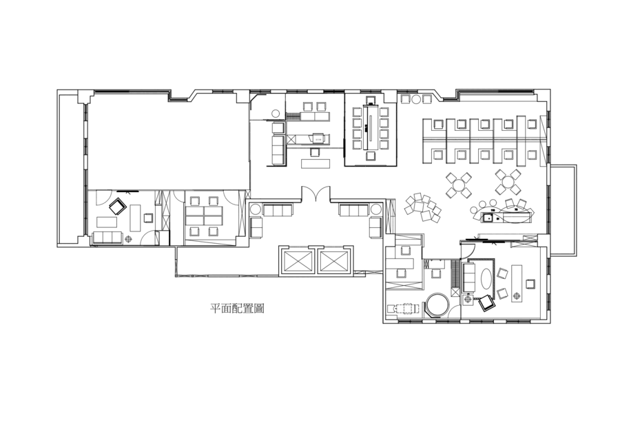
本案位於台北市內湖區,原始為一間屋齡七年的辦公室,內部隔間零碎、動線受限,已無法支撐經紀公司日常營運的需求。然而,設計師在拆除後看見了真正的可能性:方正的結構條件與極佳的自然採光。於是,設計策略從「全面歸零」開始,將辦公格局徹底打開,重新定義動線與分區,使其轉化為具備靈活用途的開放式空間。



業主希望空間不只是工作的場所,更要成為一個能傳遞品牌精神的舞台。他們提供的關鍵詞是開放、彈性、俐落與優雅,因此設計並未回到傳統隔間,而是以玻璃拉門、材質界線與比例控制來建立層次,使空間既通透又有秩序。入口正面規劃大理石主牆,搭配染色橡木皮與香檳金鍍鈦細節,構築出沉穩卻不失細膩的第一印象,成為空間最核心的視覺焦點。





材料運用以染色橡木皮、大理石與香檳金鍍鈦為主軸,搭配乳膠漆牆面與線板造型,將現代結構與古典精緻並置;木紋地坪則讓整體更顯溫潤。家具線條俐落,融入金屬與圓弧,使剛性與柔軟在同一畫面中並存。自然光透過大面開窗流入,再經由玻璃隔間延展至各角落;燈光規劃則採取環境光、洗牆光與重點光相互堆疊,讓每一面立體牆都成為可被觀看與被感受的場域。



最終成品呈現出現代風的俐落骨架、古典風的細緻語彙,再交織些許工業風的結構強度。這是一個擁有彈性變化能力的空間,能因應活動、展示或辦公的不同形式轉換角色,卻始終維持著一致的設計精神:專業中帶著溫度,沉穩而不僵硬,構築出屬於品牌的空間語言。
資料提供:理查室內設計





