
房屋狀況:老屋
屋 齡:25年
座落地點:台北市 文山區
空間坪數:80坪
設計風格:現代風、休閒風、簡約風
裝潢費用:600~700萬 (含:冷氣,不含:家具、家電)
空間類型:住家
空間格局:5房3廳4衛
使用建材:珪藻土、杏黃石、雲母石薄片、海島型木地板、進口磁磚、仿石材花磚、文化石、柚木實木皮、集層材實木皮、烤玻、訂製家具、訂製燈具、鋼烤廚具、台檜傢俱櫃
家庭成員:大人x2、小孩x2
屋主為一對即將退休的夫婦,兒女都已到達長大成人在外求學的階段。因而買下這棟具備良好環境的山邊別墅,期望能夠作為日後舒適、健康的養生退休宅。十分信奉風水的屋主,也在設計前就請老師指導風水重點並融入至設計當中。
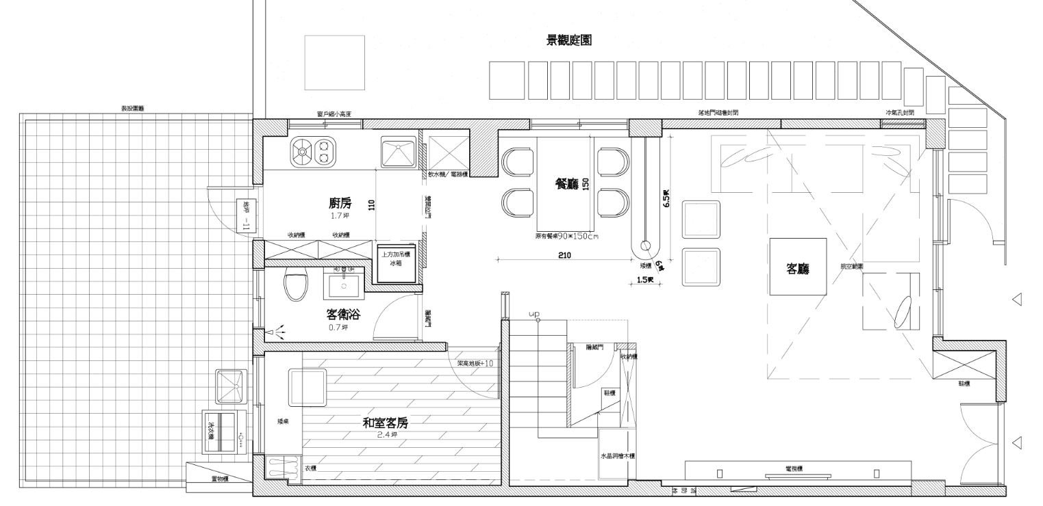
1F平面圖

室內材料選擇不鋪張華麗的飾材,也因山區地形會導致室內較潮濕,則採用日本機能建材珪藻土,作為調濕、控溫的環保建材使用。

原先良好的自然環境的條件下,藉由大面積的開窗設計,大量引進自然光線!並調整窗戶開口加強通風對流。


2F平面圖





3F平面圖




資料提供:天涵設計








