
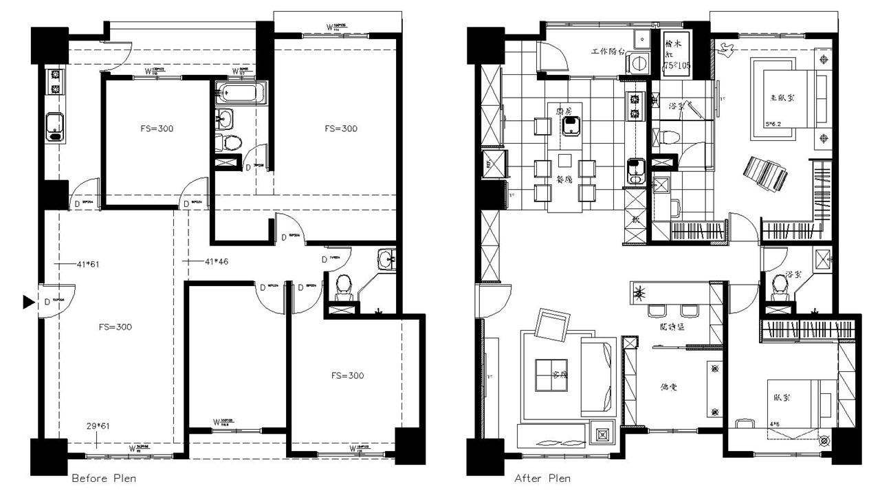
本案為女主人+1小孩的使用空間,因家庭成員只有兩人,當初購屋時原空間為4房2廳;廚房小、房間數過多;經過跟業主討論後,設計師將空間局部打散,重新有效分配出小書房、佛堂並清楚界定出公私領域空間。

有良好的通風及採光,是最吸引人的居家空間;設計師將格局變動之後更強化這項優點,並以淺色系的素材在自然光輝映下更為耀眼,顯出溫潤質樸的效果。
房屋狀況:新成屋
坐落地點:桃園市 龜山區
空間坪數:32坪
設計風格:現代簡約風
裝潢費用:240萬(不含家具、冷氣、家電)
空間類型:住家
空間格局:2房2廳2衛1佛堂
格局變化:變動隔間
使用建材:木皮板、鐵件、玻璃、人造石、系統家具、茶鏡
家庭成員:1大1小 (母女)
玄關入口

客廳







客餐廳

廚房吧檯


閱讀室

佛堂

主臥




主衛浴



小孩房




文字提供:研棫設計
【小編推薦】
【延伸閱讀】





