
座落地點:台北市 士林區
空間類型:住家
房屋狀況:新成屋 /0 年
空間坪數:未提供
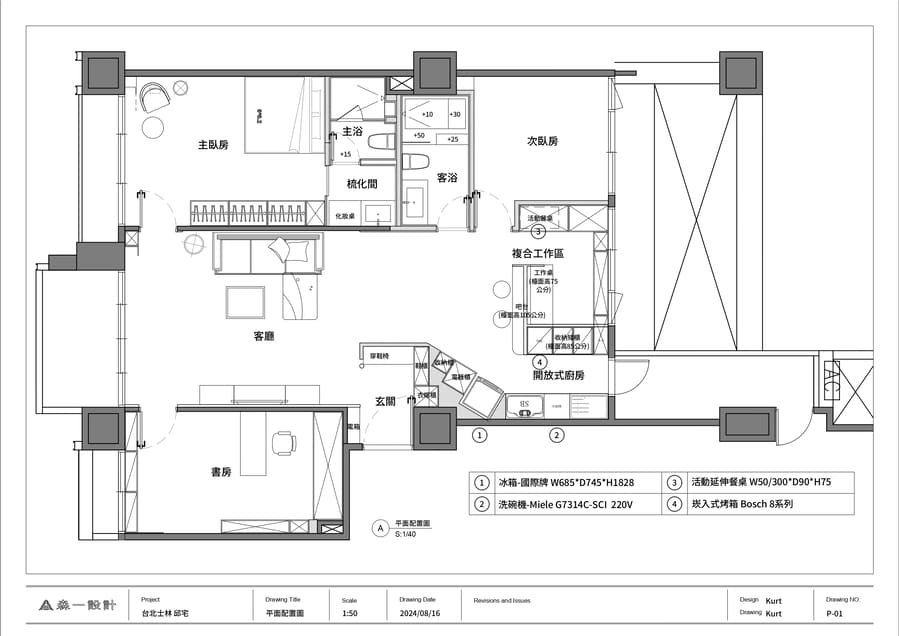
室內格局:3房2廳2衛
設計風格:現代風、日式風
裝潢費用:425萬(不含:家具、家電、冷氣)
使用建材:實木、實木皮、大版磚、抿石子、窯變磚、木紋磚、超耐磨地板
入住成員:兩位成人、一位小孩

這件座落於台北市士林區的新成屋,是為一家三口打造的現代日式簡約居所。設計師在 425 萬的預算下,大量運用實木、抿石子、窯變磚等自然素材,將窗外的陽光與盎然綠意引入室內,讓住宅不僅是避風港,更是一處能讓身心完全放鬆、充滿自然韻律的感性場域。




▍空間解構:橫向整合化解大樑壓迫感
面對大門位居中央且上方橫亙大樑的格局挑戰,設計師首要任務在於打破一進門的壓迫感。透過橫向區域的整合設計,將客廳、餐廳與廚房的節奏感相互串聯,使視覺感得以向兩側悠長延伸。天花與壁面轉化結構壓力為空間層次,不僅消弭了樑體的突兀,更賦予公共區域開闊且流暢的動線律動。
▍自然語彙:石與木織就的溫潤基底
室內基調以實木皮與清水模磚奠定日式簡約底蘊,地面鋪設溫潤的超耐磨地板,呼應窗外的微風與光影。設計上捨棄多餘的裝飾,轉而強調自然素材的真切紋理,如同一道流動的風景,讓居住者在周末長期待在家中時,能時刻感受到如同身處自然般的舒適怡人。







▍沐浴美學:泥作 RC 浴缸營造的日式風呂
為了滿足業主對衛浴空間的期待,公共衛浴特別設置了泥作 RC 浴缸,並精巧搭配木紋磚、石紋磚與抿石子。窯變磚的細膩色彩變化,結合抿石子特有的質樸觸感,在自家住宅內構築出一處如精品溫泉旅館般的「日式風呂」。透過材質的轉向與堆疊,讓洗浴儀式成為日常中最極致的放鬆享受。








▍機能共生:開放式餐廚與綠意對話
業主簡單下廚的生活習慣,促成了開放式廚房的誕生。廚房區與公領域無邊界接軌,讓料理過程也能與家人共享窗外的綠意端景。實木材質的延伸與大版磚的俐落感交織,在現代風的精準與日式風的感性之間取得完美平衡,成就了一段關於陽光、笑語與自然共生的生活記錄。





資料提供:森一設計





